Sinopsis del libro Lavadora de cítricos, frutas y verduras, con dosificador de carga
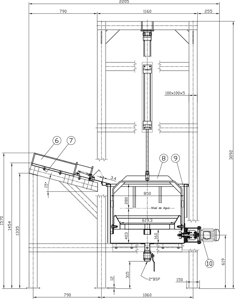
Este equipo permite lavar partidas discontinuas de cítricos, frutas y verduras. Incluye un Dosificador en el ingreso de los productos a lavar, cuya capacidad y frecuencia la determinan las dimensiones de los frutos, siendo el diámetro máximo a procesar de 110 milímetros.
El procedimiento de lavado se realiza por agitación, donde un motor de 1HP, girando a 1500 RPM remueve el agua de limpieza, que por el efecto de fricción elimina partículas no deseadas de las superficies a tratar.
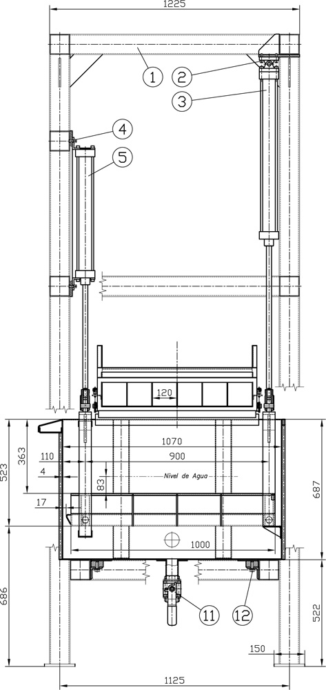
En la opción de lavado de verduras, las mismas no pueden superar los 800 milímetros de largo debido a la geometría de la canasta. Dado que la carga es directa, ya que el dosificador no cumple su función, se realiza con la batea sumergida, la cual recoge las verduras lavadas en su recorrido de izaje. El ascenso de la canasta se realiza a través de dos guías que orientan el brazo frontal, descubriendo en el inferior de las guías los topes que limitan el recorrido de descenso. Lo mismo se detalla en el tope interior de la batea, garantizando así que el agitador nunca tendrá contacto con la canasta.
El nivel de agua indicado es el recomendado de acuerdo a las condiciones mecánicas del equipo, permitiendo aumentar o disminuir el volumen de acuerdo a la experiencia con cada producto a lavar. En el diseño se consideró también que la altura de salpicado durante la agitación no supere la batea.
Se desarrollan -en formato A4- los planos completos para fabricar el equipo. En el plano de conjunto se detallan las partes estándar que se adquieren en el mercado industrial, y su mecanización de ser necesario
Los planos de piezas contienen:
La definición (o lectura) de los planos, tanto en pantalla como luego de imprimirlos, es óptima, tipo fotografía en formato .jpg con resolución de 300 píxeles/pulgada.
Cabe señalar que en ciertos planos de piezas o subconjuntos complejos, se han incluído vistas en tres dimensiones (3D) para facilitar el objetivo a lograr.


